Kampüs (Masterplan)
Yönetim, Üretim ve Lojistik
Konut - Residence
Restorasyon
Ticari Yapılar
Turizm Yapıları
Konsept - Avan Tasarımları
A. Inci Ateş - Wilke Mimarlık Bürosu
tr
|
eng
Hedefimiz, motivasyonu arttıran, zekayı canlandıran ve sağlığı geliştiren projelere imza atmaktır.
Yaratıcılığımız, uyumlu koordinasyon ve çalışanlarımızla beraber gelişen tasarım mirasımızdan oluşur.
Ateş'te veya Ateş için çalışan uzmanların yetenek ve görüşleri, kabarık sayıdaki yurt içi / yurt dışı projeleri ile güçlenmiştir.
Ateş, her inşaat projesi için seçilmiş / gerekli tasarım ve danışmanlık hizmetlerinin koordinasyonunu sağlar.
Güçlü noktamız, dayanıklı, esnek ve fonksiyonel olduğu kadar yenilikçi tasarımlar yaratmaktır.
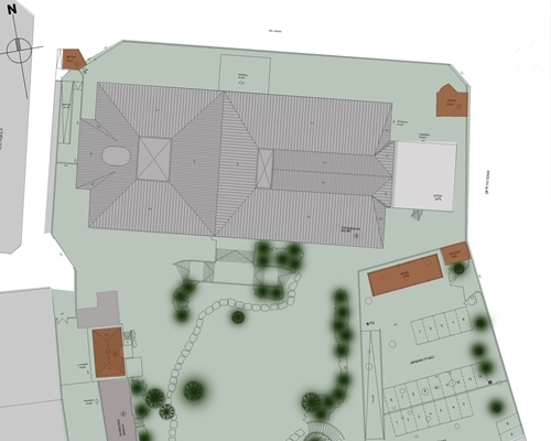
İstanbul Alman Başkonsolosluğu
Projeler
Kampüs (Masterplan)
Yönetim, Üretim ve Lojistik
Konut - Residence
Restorasyon
Ticari Yapılar
Turizm Yapıları
Konsept - Avan Tasarımları
A. Inci Ateş - Wilke Mimarlık Bürosu
Lokasyon
:
İstanbul / Gümüşsuyu
İnşaat Alanı
:
8548 m
2
Tarih
:
1982
İşveren
:
Almanya Bayındırlık Bakanlığı